Mehdiabad qəsəbəsində "Şok" və “Araz”marketlərlə üzbəüz "Gənclər şəhərciyi"nin yaninda yerləşir. Demək olarki Binəqədinin ərazisidir.
4 sot torpağın içində yerləşir. Torpağın Çıxarışı, evin İcra Hakimiyyətindən Sərəncamı var.
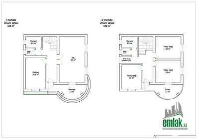
Evin suyu, qazı, işığı daimidir. 1.2m (6daş) zirzəmi ilə tikilib. 2 mərtəbəlidir ev. Evin ölçüləri 11.5m*10m-dir.
1-ci mərtəbədə 37kvm (8.2m*4.5m) zal, 21kvm (5.5m*3.8m) mətbəx,10kvm (3m*3.3m) sanitar qovşaq yerləşir. 2-ci mərtəbədə iki ədəd 18kvm (4.5m*4m) yataq otağı, bir ədəd 21kvm (5.5m*3.8m) yataq otağı,7kvm (3m*2.3m) sanitar qovşaq,12kvm (7.5m*2.5m) eyvan yerləşir.
1-ci və 2-ci mərtəbələrin arası monolitdir (beton). Tam təmirlidir. Evin tikintisində işləndilmiş bütün materiallar ən keyfiyyətlilərindəndir. Şatış üçün nəzərdə tutulmamışdır tikiləndə.
Tam hasara alınıb. 15 tonluq yeraltı su çəni tikilib. Həyətində bir neçə adda meyvə ağacları var.
TƏCİLİ ŞƏXSİ HƏYƏT EVİMİ SATIRAM !!!
Qaradağ rayonu, Lökbatan qəsəbəsi, 6-cı Massivdə yerləşir.
1.5 sotda tikili sahəsi 150 kv.m olan 2 mərtəbəli 5 otaqlı və yerdən kürsülü Dəniz mənzərəli həyət evidir. Ev cüt daşl...
Ev yaxşı vəziyyətdədir. Super mənzərəsi var. Naves, 4 ədəd böyük yardımçı tikilişi var. 2 yerdən həyətə bulağ suyu gəlir. Şəhər mərkəzindən 14 km məsafədə yerləşir. Qapıya qədər yol asvaltdir. Kamera sisteminə kimi var. ...
\\\\\\ Satılır — 2 mərtəbəli həyət evi | Binə qəsəbəsi, əsas yoldan 200 metr məsafədə
Torpaq sahəsi: 1.8 sot
Ev: 180 m², 5 otaq, 2 mərtəbə
Birinci mərtəbə və mərtəbələr arası: monolit beton
Aşağı mərtəbəd...
Yeni Gəncədə, keçmiş Meronun yaxınlığında həyət evi satıram. 4 son ərazidə tikilib, ərazi katlavan yeri olmayıb, bərkdir. Mərkəzi kanalizasiya sistemi, yeraltı 16 tonluq su çəni, daimi suyu, qazı, işığı, internet xətti v...
Təcili dəyərindən ucuz satılır!Həyət evi düz asfalt yolun kənarında yerləşir.Həyətyanı torpağı 35 sotdur.Ev 2 mərtəbədən ibarətdir.Evin darvazası birbaşa asfalta baxır.Ev rayon mərkəzinə çox yaxın 1 dəqiqəlik məsafədə ye...
K374 Kupçalı ipotekaya yararlı Super təmirli Ağ sarayın 284 məktəbə yaxın şəxsi tikili yola yaxın yerdə 91 marşrutun yolu 5 otaq 2 sotda olan ev təcili satılır qiymətdə razılaşmaq olar isdənlən vaxt baxmaq olar Çıraq əm...
PAKET KUPÇALI HƏYƏT EVİ SATILIR!
Suraxanı rayonu.Yeni Bahar qəsəbəsində 2 sot torpaq sahəsində 2 mərtəbəli 5 otaqlı həyət evi satılır.Ev möhkəm fundamentlidir.Beton kəmər və mərtəbə arası beton monolitdir.Evin ü...
K374. Super təmirli Kupçalı ev Ağ saraya yaxın yerdə olan ev təcli satlır qiymətdə razılaşmaq olar isdənlən vaxt baxmaq olar ciraq əmlak kanalına abunə olun bütün vidyalar sizə catsın əgər sizlərin də satışda həyət evi b...
MÖHTƏŞƏM TƏKLİF!!! 240.000 MANAT!!!
Suraxanı rayonu, Yeni Günəşli V massivində 5 otaq studio tipli ev satışa çıxarılır. Ev 2.2 sotun içərisində yerləşir. Ümumi sahəsi 160kv/m-dir.
Ev yerdən 5 daş kürsülüdür və qoşa da...
Telefon nömrənizi daxil etməklə Sizi maraqlandıran yeni elanlardan dərhal xəbərdar olun
Xəritədə ünvanı
Dostuna göndər
Elanın premium edilməsi
Bu funksiyadan istifadə edərək elanınızı əsas səhifədə "Premium elanlar" bölməsində yerləşdirə bilərsiniz.
Premium etdiyiniz zaman elanınızın "Elanın tarixi" premium etdiyiniz dəqiqəyə yenilənir və yenidən 1 ay ərzində saytda aktiv qalır.
Bir elan premium olduğu halda yenidən premium edib ödəniş etdiyiniz zaman əvvəlki premium olunmuş vaxtdan qalan zaman indiki ödədiyiniz vaxt ilə toplanır.
Kredit kart
Portmanat
tabs 2
Elanın irəli çəkilməsi
Bu funksiyadan istifadə edərək siz elanınızı saytda irəli çəkə bilərsiniz.
Ödəniş həyata keçdikdən sonra elanınızın "Elanın tarixi" müddəti indiki zamana dəyişir və saytda yenidən 1 ay ərzində aktiv qalır.
Bundan əlavə elanınız əsas səhifədə və axtarışın parametrlərində 12 saat müddətinə irəlidə qalır və başqa elanlar əlavə edilməsinə baxmayaraq arxaya keçmir.
Profildən daxil olduğunuz zaman "Elanı irəli çək" funksiyasını paket şəklində əldə edə bilərsiniz və sonradan hansı elanınıza istəsəniz tətbiq edə bilərsiniz.
Kredit kart
Paket
Portmanat
portmanat
Elanı axtarışda seçilən et
Bu funksiyadan istifadə edərək sizin elanınızın parametrləri üzrə axtarışın nəticələrində üst hissədə öz elanınızı yerləşdirə bilərsiniz.
Xidmət haqqının ödənilməsindən sonra elanınız rənglənəcək və hətta sonradan yeni elanlar əlavə olunarsa belə, 10 gün ərzində elanınızın parametri üzrə axtarış nəticələrində üst hissədə göstəriləcək.
Kredit kart
Paket
Portmanat
tabs 2
Elanı təcili et
Bu funksiyadan istifadə edərək elanınızın üzərində "Təcili" sözünü yazdıra bilərsiniz. Elanınız aktiv qaldığı müddətcə bu söz onun üzərində qalacaq və diqqət çəkəcək.
Kredit kart
Portmanat
tabs 2
Əlaqə vasitəsini gör
Bu funksiyadan istifadə edərək, elanın sahibinin nömrəsini görüntülü edə bilərsiniz.
Kredit kart
Portmanat
tabs 2
Elanı facebook və instagramda paylaş
Bu funksiyadan istifadə etdikdə, sizin elan 80 000-lik facebook səhifəsində ve 80 000-lik instagram səhifəsində paylaşılacaq.
Kredit kart
Portmanat
tabs 2
Sosial video reklam
Bu xidmətdən istifadə edərək sizin əmlakın təqdimat videosu bizim sosial şəbəkə hesablarımızda paylaşılacaq və 1000-lərlə alıcının diqqətinə çatdırılacaqdır.
Qiymətə tərəfimizdən profesional izahlı video çəkiliş, montaj, səsləndirmə, foto çəkiliş, əmlak haqqında mətnin yazılması, elanın sayta yerləşdirilməsi-də daxildir.