İş saatları: 1-5- ci günlər. 9:00-19:00, 6 ci gun 9:00 - 14:00
Elanlara SMS abunə Daxil ol Qeydiyyat Elan ver

Satılır 5 otaqlı 230 m2 həyət evi Mehdiabad

Elanın kodu: 1318922

190 000 $ 111 764.00
Baxış sayı: 37 Elanın tarixi: 09.02.2026

Əsas məlumatlar

Mehdiabad qəsəbəsində "Qarabağ" marketlə üzbəüz "Gənclər şəhərciyi"nin yaninda yerləşir. Demək olarki Binəqədinin ərazisidir.
4 sot torpağın içində yerləşir. Torpağın Çıxarışı, evin İcra Hakimiyyətindən Sərəncamı var.
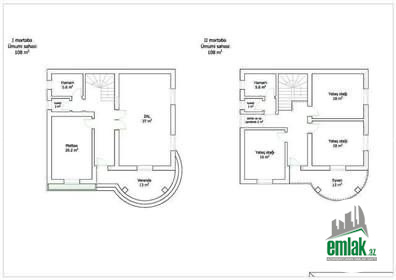
Evin suyu, qazı, işığı daimidir. 1.2m (6daş) zirzəmi ilə tikilib. 2 mərtəbəlidir ev. Evin ölçüləri 11.5m*10m-dir. Ev qoşa daşla + 500 marka sementlə (Mazandaran) inşa edilib.
1-ci mərtəbədə 37kvm (8.2m*4.5m) zal, 21kvm (5.5m*3.8m) mətbəx,10kvm (3m*3.3m) sanitar qovşaq yerləşir. 2-ci mərtəbədə iki ədəd 18kvm (4.5m*4m) yataq otağı, bir ədəd 21kvm (5.5m*3.8m) yataq otağı, 7kvm (3m*2.3m) sanitar qovşaq,12kvm (7.5m*2.5m) eyvan yerləşir.
Ev tam təmirlidir. 2023cü il tarixində 70.000Azn xərc qoyulub təmirinə. Qalan iş fasadın rənglənməsidir (2000Azn xərci var).
Tam hasara alınıb. 15 tonluq yeraltı su çəni tikilib. Həyətində bir neçə adda bar verən meyvə ağacları var.
Alıcı ilə qiymətdə razılaşmaq mümkündür.

Əmlakın növüHəyət evi
Sahə230 m2
Otaqların sayı5
Mərtəbə sayı2
TəmiriƏla təmirli
Sənədin tipiÇıxarış (Kupça)

Əlaqəli şəxs

Diqqət! Əgər zəng etdiyiniz zaman nömrəni Emlak.az saytından götürdüyünüzü desəniz, sizə xüsusi endirim olunacaq.

Zaur (Mülkiyyətçi) Nömrəni göstər

(055) 214-13-15

 

Ünvan: Mədinə Gülgün küçəsi

Oxşar elanlar
Mərtəbə: 2   Sənədin tipi: Çıxarış (Kupça)

Novxanı qəsəbəsində isə 20 sot torpaq sahəsində tikilmiş 5 otaqlı həyət evi satışa təqdim olunur. Ev 260 m² ümumi sahəyə malikdir və rahat, funksional planlaması ilə seçilir. Ev haqqında məlumat: • Otaq sayı: 5 otaq •...

235 000 AZN

Mərtəbə: 3   Sənədin tipi: Çıxarış (Kupça)

NƏSİMİ METROSUNA 4 DƏQİQƏLİK MƏSAFƏ!! Vorovski - Milyonerlər məhəlləsində təmirli həyət evi! Bu ərazidə bu qiymətə belə həyət evi yoxdur. Torpağın da, Evin də Kupçası var. Qaz,Su,işıq daimidir. 2 sot, 150 kv. 3 m...

300 000 AZN

Mərtəbə: 2   Sənədin tipi: Çıxarış (Kupça)

Saray qəsəbəsində kupçalı villa – ipotekaya yararlı Saray qəsəbəsi, Qaçaq Nəbi küçəsində, 10 sot torpaq sahəsində inşa edilmiş geniş və komfortlu fərdi yaşayış evi satışdadır. Evin ölçüləri: 16 × 12 metr Ümumi p...

215 000 AZN

Mərtəbə: 2   Sənədin tipi: Çıxarış (Kupça)

Tecili satilir real deyerinden aşaqi.ƏHMƏDLİ HƏYƏT EVİ Əhmədlidə ukranski kruqdan aşağıda 2 metro (Həzi Aslanov , Əhmədli ) yaxınlığında satılır . Kupça çıxarış var. Torpaq kimidə satılır.Şuşa marketin yaxınında fikri ci...

270 000 AZN

Mərtəbə: 2   Sənədin tipi: Çıxarış (Kupça)

Xəzər rayonu, Şağan qəsəbəsində, pirə gedən yolun üzərində, əlverişli və prestijli ərazidə yerləşən fərdi yaşayış evi satılır. Ərazi daim yaşayış olan zonadadır. Ev şəxsi tikilidir, paket kupçalıdır və ipotekaya tam yara...

430 000 AZN

Mərtəbə: 1   Sənədin tipi: Çıxarış (Kupça)

İPATEKAYA YARARLI PAKET KUPCA SABUNCU RAYONU MƏHƏMMƏDİ Qəsəbəsində Yeni cəkilən Sibriz yolunun üstündə 6 sotda 5 otaqlı 130 kvm mənzil satılır. Mərkəzi Kombi sistemi var Mərtəbə . Sənəd Çıxarış-Kupça.Paket İpote...

160 000 AZN

Mərtəbə: 1   Sənədin tipi: Çıxarış (Kupça)

Həyət evi təcili satılır. Evin,torpağın sənədləri tam qaydasındadır.7 sot. Dəniz mənzərəli. Ev telefonu,vayfayla təmin olunub Ev hündürdü,kürsülüdü. 3 otaq,zal,mətbəx,dəhliz,eyvan.Həyətdə 2 su çəni,meyvə ağacları var...

400 000 AZN

Mərtəbə: 2   Sənədin tipi: Bələdiyyə sənədi

Biləcərdə 2.5 sot həyətyanı sahəsi olan 2 mərtəbəli,5 otaqlı,tam təmirli həyət evi satılır. Bütün kamunikasiya xətləri var.Qaz,işıq,su daimidir,istilik sistemi kombi,sənəd Bələdiyyə. Evin üzü aqlaydır,şəxsi tikilidir.Bi...

260 000 AZN

Mərtəbə: 2   Sənədin tipi: Çıxarış (Kupça)

iki mərtəbəli kombi internet telefon daimi qaz işıq su ilə təchiz olunmuş 3 sotluq həyət evi ( ev ilə birlikdə).i bütün sənədləri qaydasındadır. həyətdə meyvə ağacları var. isti metlax çəkilib.İkinci mərtəbədə2 sanuzeli...

299 999 AZN

Mərtəbə: 1   Sənədin tipi:

5-dən çox otaq var, amma əsas dəyəri torpağıdır. ​Piyada 3 dəqiqəyə Mall-dasınız. ​Nəqliyyat problemi yoxdur – şəhərin hər tərəfinə buradan avtobus gedir. avtobus dayanacagi sozun esil menasinda ev ile uz uzedir 5 sot...

140 000 AZN