İş saatları: 1-5- ci günlər. 9:00-19:00, 6 ci gun 9:00 - 14:00
Elanlara SMS abunə Daxil ol Qeydiyyat Elan ver

Satılır 2 otaqlı 65 m2 köhnə tikili Gənclik m.

Elanın kodu: 491137

120 000 $ 70 588.00
Baxış sayı: 580 Elanın tarixi: 22.03.2019

Əsas məlumatlar

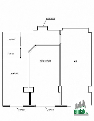
TƏCİLİ Ayna Sultanova Heykəli yaxınlığında, Bazar Store supermarketinin yerləşdiyi ekspermental layihəli binada 2 otaqli yaxşı təmirli mənzil satılır. Eyvanların hamısı mənzilə qatılıb.Mənzilin ümumi sahəsi 65 kvm-dir, bundan əlavə pilləkan qəfəsindən dəmir qapı ilə ayrılmış iki qonşu mənzillərə məxsus 14 kvm-lik koridor var. Koridordan sonra seyf qapı ilə mənzilə daxil olursunuz. Mənzil orta blokdur. Mətbəx mebeli (texnikalar daxil deyil), giriş qarderobu mənzilin üstündə verilir. Geniş həyəti var, ətrafda məktəb, baxça, geyim və ərzaq malları dükanları, klinikalar, şəhərin bir çox istiqamətlərində hərəkət eden avtobusların dayanacağı var. Gənclik metrosuna avtobus ilə 3-4 dəqiqəlik yoldur.Ciddi şəxslər narahat etsin.

Əmlakın növüKöhnə tikili
Sahə65 m2
Otaqların sayı2
Yerləşdiyi mərtəbə8
Mərtəbə sayı9
TəmiriƏla təmirli
Sənədin tipiÇıxarış (Kupça)
Bu elanın vaxtı bitib
 

Ünvan: Ziya Bünyadov pr.

Oxşar elanlar
Mərtəbə: 2/2   Sənədin tipi: Çıxarış (Kupça)

Ev köhnə tikili Binəqədi r.Rəsulzadə qəs.. ARAZ MARKET,bazarın, məktəblərin, xəstəxana yaxınlığı,Yaninda 2 uşağ bağçası maks.1dəq.piyada yolu,Ev ozu esas yolunnan 50 m. Kənarında, avtobus dayanacağı 5 dəq.mesəfə...

91 800 AZN

Mərtəbə: 5/5   Sənədin tipi: Çıxarış (Kupça)

Qızıdaş qəsəbəsi,Poliklinikanın üstündəki binada,tam mərkəzdə. Evin əlavə 1 tonluq su çəni,daimi qazı işığı suyu var. Evin təzə təmir olunub.Balkonlar evə qatılıb və örtülüb,əlavə otaq kimi istifadə edilir. Evdəki əşya...

45 000 AZN

Mərtəbə: 1/5   Sənədin tipi: Çıxarış (Kupça)

Oz shexsi evimdi. Mulkiyyetciyem. KUPCALI Nizami rayonu 8ci km. Heyder parkinin duz yaninda. 26 nomreli poliklinikanin yaninda yerlesen Qanuni 2 otaqli menzil.  Yol ve avtobus dayanacaqi Ile binanin 15 mtr mesafesi var...

160 000 AZN

Mərtəbə: 2/5   Sənədin tipi: Çıxarış (Kupça)

Mənzil Satilir Yasamal Rayonu Parlament prospekti 2 otaga duzəlmə 40 kv 5\\2 Orta təmir Cixaris var.Xurusovka proyekt.Qaz su isig daimi.Ətrafli məlumat ucun əlaqə saxlayin.Ofis haqqi 1%

120 000 AZN

Mərtəbə: 3/9   Sənədin tipi: Çıxarış (Kupça)

Salam, Yeni Günəşli qəsəbəsi, D massivində Leninqrad layihəli binada mənzil satılır. 9 mərtəbəli binanın 3-cü mərtəbəsi 1 otaqdan 2 otağa düzəldilmiş Zəif təmirli 2 balkon Cənub künc mənzil Mənzilə y...

92 000 AZN

Mərtəbə: 2/5   Sənədin tipi: Çıxarış (Kupça)

Salam. Ev Leyla merəsim eviylə üz bə üz də yerləşir. Binanın qabağından bütün marşurutlar geçir.(65,85,və s.). Binanın 150metrliyində 240 nömrəli məktəb var. 24 saat aprek, və super marketlər var. Gənc ailə quranlar üçün...

147 500 AZN

Mərtəbə: 8/9   Sənədin tipi: Çıxarış (Kupça)

8 ci km qəsəbəsində Leninqrad lahiyəli 9 mərtəbəli binanın 8 ci mərtəbəsində Qarayev metrosuna 1 dəqiqəlik məsafədə422 qanuni 2 otaq 48 kv orta təmirli mənzil satışa çıxardılıb. Mərkəzi istilik sistemi var. Şirkət haqq...

180 000 AZN

Mərtəbə: 4/17   Sənədin tipi: Çıxarış (Kupça)

İcarəyə verilir 2 otaqlı yeni tikili – 85 m² Həzi Aslanov metrosundan cəmi 100 metr məsafədə, Günel Ticarət Mərkəzinin yanındakı binada yerləşən 17 mərtəbəli yeni tikilinin 3-cü mərtəbəsində tam yeni təmirli 2 otaqlı ...

600 AZN

Mərtəbə: 2/4   Sənədin tipi: Çıxarış (Kupça)

Tecili satilir !!!! 28 maya yaxin , Baki gömrük idaresinin yaninda 2 ci mertebede yerlesen iki otaqli menzil.Menzil hazirda 500 manata kiraye verilib, bina sökuntuye geden binadir, qiymet cox eladir ,investisiya baxim...

125 000 AZN

Mərtəbə: 2/2   Sənədin tipi: Çıxarış (Kupça)

Paket kupca qaz su isig daimi mənzil səngəçal qəsəbəsindədi tecili satilir qiymetde endirim olacaq

37 500 AZN