Satılır 2 otaqlı 60 m2 köhnə tikili Ayna Sultanova heykəli
Elanın kodu: 492567
93 000$ 54 705.00
Baxış sayı: 578Elanın tarixi: 28.03.2019
Əsas məlumatlar
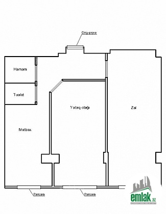
Nərimanov rayonu Atatürk prospekti , Ayna Sultanova heykelin yani, EKSPERMENTAL layiheli daş binada 2 otaqli orta temirli menzil satilir. Gənclik metrosuna 6-7 dəqiqə aralıda . Eyvanlar menzile qatilib. Genish 24 saat qorunan Şlaqbaumlu heyeti var. Genclik metrosuna yaxindir . TAM Səliqəli mənzildir. Bu binada bu qiymətə orta təmir mənzil yoxdur! Qiymetde endirim ola biler. Alıcı firmaya 1% ödəyəcək!
Medika Hospitalın yanında 62 Nomrəli aftobusun axırıncı dayanacağında 9 mərtəbəli \"Kiev\" Lahiyəli binanın binanın 5-ci mərtəbəsində qanuni 2 otaqlı əşyalı mənzil satılır. Ətraflı məlumat üçün əlaqə saxlaya bilərsiz. Xi...
Şəhərin mərkəzində, en elit yerde Port Baku walkın yanında, Nizami kucesi, 27 sayli mektebin yani, yeni berpa olunmuş,
eksperimental layiheli – dash bina, umumi sahesi 76 kv m olan 2 otaqli menzil satilir. Mertebe 10/9,...
EKSKLUZİV TƏKLİF!
.
KUPÇALI+İPOTEKAYA YARARLI!
.
Ünvan: Gənclik metrosunun yaxınlığında, 5 nömrəli xəstəxana ilə üzbəüz abad məhəllədə Leninqrad layihəli 10 mərtəbəli köhnə tikili binanın 9-cu mərtəbəsində qanuni 2 o...
KUPÇALI+İPOTEKAYA YARARLI
GENCLER PARKİNİN YAXINLIĞINDA
Həzi Aslanov metrosuna 10-12 dəqəlik məsafədə
Kiyev lahiyeli binanın 9/1 də radnoy 2 otağlı mənzil satılır
Mənzil yeni təmir olunub və təmirdən sonra yasayış ol...
TƏCİLİ SATILIR.
Binəqədi rayonu 7 mkr.
Dərnəgül metro st yaxınlıqında.
Avtobus dayanacaqin duz yani.
5 mərtəbəli binanın 3cü mərtəbəsi qanuni 2 otaq.
Asanliqla 3 otaqa düzəltmək mümkündür.
Binanın yerləşdiyi yer yü...
TƏCİLİ SATILIR!!!
.
Bakıxanov qəsəbəsində yerləşən Leninqrad layihəli binada təmirli və əşyalı mənzil satışa təqdim olunur. İlkin olaraq 1 otaqlı layihə əsasında olsa da, funksional şəkildə 2 otağa çevrilərək rahat və ...
Premium seqmentdə, seçilmiş alıcılar üçün ideal fürsət!
Kupçalı və ipotekaya tam yararlı – hüquqi baxımdan problemsiz və rahat alış imkanı
Köhnə tikili, etibarlılığı ilə seçilən Leninqrad layihəli bina
Qanuni 2 ota...
Nizami rayonu, Bəhruz Nuriyev küçəsində Xalqlar metrosuna yaxın ərazidə 5 mərtəbəli xurşofka lahiyəli binanın 5 ci mərtəbəsində mənzil satışa təqdim olunur.
.
Mənzil qanuni 2 otaqdan ibarət olub, 65 kvmetr sahəyə malik...
Premium seqmentdə, seçilmiş alıcılar üçün ideal fürsət!
Kupçalı və ipotekaya tam yararlı – hüquqi baxımdan problemsiz və rahat alış imkanı
Köhnə tikili, etibarlılığı ilə seçilən Leninqrad layihəli bina
Qanuni 2 ota...
Telefon nömrənizi daxil etməklə Sizi maraqlandıran yeni elanlardan dərhal xəbərdar olun
Xəritədə ünvanı
Dostuna göndər
Elanın premium edilməsi
Bu funksiyadan istifadə edərək elanınızı əsas səhifədə "Premium elanlar" bölməsində yerləşdirə bilərsiniz.
Premium etdiyiniz zaman elanınızın "Elanın tarixi" premium etdiyiniz dəqiqəyə yenilənir və yenidən 1 ay ərzində saytda aktiv qalır.
Bir elan premium olduğu halda yenidən premium edib ödəniş etdiyiniz zaman əvvəlki premium olunmuş vaxtdan qalan zaman indiki ödədiyiniz vaxt ilə toplanır.
Kredit kart
Portmanat
tabs 2
Elanın irəli çəkilməsi
Bu funksiyadan istifadə edərək siz elanınızı saytda irəli çəkə bilərsiniz.
Ödəniş həyata keçdikdən sonra elanınızın "Elanın tarixi" müddəti indiki zamana dəyişir və saytda yenidən 1 ay ərzində aktiv qalır.
Bundan əlavə elanınız əsas səhifədə və axtarışın parametrlərində 12 saat müddətinə irəlidə qalır və başqa elanlar əlavə edilməsinə baxmayaraq arxaya keçmir.
Profildən daxil olduğunuz zaman "Elanı irəli çək" funksiyasını paket şəklində əldə edə bilərsiniz və sonradan hansı elanınıza istəsəniz tətbiq edə bilərsiniz.
Kredit kart
Paket
Portmanat
portmanat
Elanı axtarışda seçilən et
Bu funksiyadan istifadə edərək sizin elanınızın parametrləri üzrə axtarışın nəticələrində üst hissədə öz elanınızı yerləşdirə bilərsiniz.
Xidmət haqqının ödənilməsindən sonra elanınız rənglənəcək və hətta sonradan yeni elanlar əlavə olunarsa belə, 10 gün ərzində elanınızın parametri üzrə axtarış nəticələrində üst hissədə göstəriləcək.
Kredit kart
Paket
Portmanat
tabs 2
Elanı təcili et
Bu funksiyadan istifadə edərək elanınızın üzərində "Təcili" sözünü yazdıra bilərsiniz. Elanınız aktiv qaldığı müddətcə bu söz onun üzərində qalacaq və diqqət çəkəcək.
Kredit kart
Portmanat
tabs 2
Əlaqə vasitəsini gör
Bu funksiyadan istifadə edərək, elanın sahibinin nömrəsini görüntülü edə bilərsiniz.
Kredit kart
Portmanat
tabs 2
Elanı facebook və instagramda paylaş
Bu funksiyadan istifadə etdikdə, sizin elan 80 000-lik facebook səhifəsində ve 80 000-lik instagram səhifəsində paylaşılacaq.
Kredit kart
Portmanat
tabs 2
Sosial video reklam
Bu xidmətdən istifadə edərək sizin əmlakın təqdimat videosu bizim sosial şəbəkə hesablarımızda paylaşılacaq və 1000-lərlə alıcının diqqətinə çatdırılacaqdır.
Qiymətə tərəfimizdən profesional izahlı video çəkiliş, montaj, səsləndirmə, foto çəkiliş, əmlak haqqında mətnin yazılması, elanın sayta yerləşdirilməsi-də daxildir.