İş saatları: 1-5- ci günlər. 9:00-19:00, 6 ci gun 9:00 - 14:00
Elanlara SMS abunə Daxil ol Qeydiyyat Elan ver

Satılır 2 otaqlı 65 m2 köhnə tikili Gənclik m.

Elanın kodu: 513204

104 000 $ 61 176.00
Baxış sayı: 637 Elanın tarixi: 10.06.2019

Əsas məlumatlar

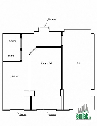
Ayna Sultanova Heykəli yaxınlığında, Bazar Store supermarketinin yerləşdiyi, ekspermental layihəli binada 2 otaqli əla təmirli mənzil satılır. Eyvanların hamısı mənzilə qatılıb.Mənzilin ümumi sahəsi 65 kvm-dir, bundan əlavə pilləkan qəfəsindən dəmir qapı ilə ayrılmış iki qonşu mənzillərə məxsus 14 kvm-lik koridor var. Koridordan sonra seyf qapı ilə mənzilə daxil olursunuz. Mənzil orta blokdur. Mətbəx mebeli (texnikalar daxil deyil), giriş qarderobu mənzilin üstündə verilir.
Geniş həyəti var, ətrafda məktəb, baxça, geyim və ərzaq malları dükanları, klinikalar, şəhərin bir çox istiqamətlərində hərəkət eden avtobusların dayanacağı var. Gənclik metrosuna avtobus ilə 3-4 dəqiqəlik yoldur. (kod703)

Əmlakın növüKöhnə tikili
Sahə65 m2
Otaqların sayı2
Yerləşdiyi mərtəbə8
Mərtəbə sayı9
TəmiriƏla təmirli
Sənədin tipiÇıxarış (Kupça)
Bu elanın vaxtı bitib
 

Ünvan: pr.Ararürk 50

Oxşar elanlar
Mərtəbə: 7/9   Sənədin tipi: Çıxarış (Kupça)

TƏCİLİ SATILIR Kateqoriya: Köhnə tikili Mərtəbə: 7 / 9 Sahə: 65 m² Otaq sayı: 2 qanuni Çıxarış (Kupça): Var İpoteka: Yararlı Təmir: Var Həzi Aslanov metro stansiyasına 15–20 dəqiqəlik piyada məsafə. Yeni t...

146 000 AZN

Mərtəbə: 4/5   Sənədin tipi: Çıxarış (Kupça)

TƏCİLİ SATILIR — ƏLİM YANDI! Endirim olacaq, yalnız real alıcılar zəng etsin Kateqoriya: Köhnə tikili Mərtəbə: 4 / 5 Sahə: 55 m² Otaq sayı: 2 Çıxarış: Var Təmir: Var Mənzil haqqında: Mənzil 5 mərtə...

144 000 AZN

Mərtəbə: 4/5   Sənədin tipi: Çıxarış (Kupça)

ÇOX TƏCİLİ EKSKLÜZİV ƏLİMYANDI DÜŞMƏ SUPER VARYANT QANUNİ 2 OTAQLI STALİNKA — STATİSTİKA KOMİTƏSİNİN DÜZ YANINDA QİYMƏTİ TƏCİLİ İNDİ DÜŞDÜ — KUPÇALI ENDİRİM YALNIZ BUGÜNLÜK KEÇƏRLİDİR! BU FÜRSƏTİ QAÇIRMAYIN! GƏLİN ...

165 000 AZN

Mərtəbə: 4/5   Sənədin tipi: Çıxarış (Kupça)

TƏCİLİ SATILIR! Neftçilər metrosundan cəmi 10 dəqiqəlik məsafədə – 2 otaqlı TAM ƏŞYALI mənzil satılır! Yalnız bir neçə şəxsi əşya çıxarılacaq 26 nömrəli poliklinikanın yanında, əlverişli və sakit məhəllə Təmi...

140 000 AZN

Mərtəbə: 2/5   Sənədin tipi: Çıxarış (Kupça)

TƏCİLİ SATILIR! ŞOK QİYMƏT! Bakı şəhəri Ünvan: Bəhruz Nuriyev küç. Köhnə tikili | 2 otaq | 52 m² Xalqlar Dostluğu metrosundan cəmi 10 dəqiqə piyada! Park, məktəb, bağça – hamısı yaxınlıqda! Sakit və əl...

135 000 AZN

Mərtəbə: 5/5   Sənədin tipi: Çıxarış (Kupça)

TƏCİLİ SATILIR!!! 1 Otaqdan 2 otaqa düzəlmə mənzil satılır!! Qaz, su, işıq daimidir. Ətrafında məktəb,bağça,market,aptek və.s yerləşir. Şirkət haqqı 1%.

118 000 AZN

Mərtəbə: 2/5   Sənədin tipi: Çıxarış (Kupça)

Kupçalı, Sənədlər qaydasındadır Qarayev Metroya 4dəq aralıqda İnfrastruktur cəhətdən çox əlverişlidir Qaz, su, işıq daimidir Tam təmirlidir Əlavə məlumat üçün əlaqə saxlayın WhatsApp aktivdir Ofis zəhmət haqqı ...

116 000 AZN

Mərtəbə: 2/9   Sənədin tipi: Çıxarış (Kupça)

Təzə təmirdən cixib.su işiq qaz faziləsizdir,internet vifi ev telefonu,kombi sistemi və dövlət istilik sistemi var,mətbəx və sanuzel isti poldu,1 otaqda 2 otaqa duzəlib zövqə uygun təmir olub,bina cox əlverişli yerde yer...

132 AZN

Mərtəbə: 5/6   Sənədin tipi: Çıxarış (Kupça)

ÇOX TƏCİLİ SATILIR! BAZAR DƏYƏRİNDƏN UCUZ MƏNZİL! YALNIZ BUGÜN ÜÇÜN SUPER ENDİRİM Gənclik metrosunun çıxışında, super təmirli 2 otaqlı mənzil satılır! Ünvan: Nərimanov rayonu, “Ganjlik Mall”la üzbəüz, Gənclik ...

173 000 AZN

Mərtəbə: 4/5   Sənədin tipi: Çıxarış (Kupça)

QAÇIRILMAZ FÜRSƏT! Gənclik metrosuna yaxın məsafədə, Kooperasiya Universiteti-nin yanında yerləşən möhtəşəm təmirli mənzil. Kupçası var. Qaz,Su,işıq daimidir. 1 otaqdan 2 otağa ideal düzəlib!!! Geniş həyət...

115 000 AZN