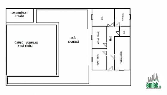
Əmlak 5 sot işərisində tikilmiş 13x10m olan tam təmirli, kondisionerli (dörd otaq+mətbəx) otaqdan ibarətdir. Həyətyanı sahədə 10x10m olan özülü tökülmüş tikili mövcuddur ki (mansardlı bina üçün nəzərdə tutulmuş) tikili üçün icradan icazə alınmış ama özüldən başqa iş görülməmişdir . Həyətyani sahəsində səliqəli olaraq fərqli meyvə ağacları əkilmiş və 2x4m təsərrüfat otağı tikilmişdir. Həyətində metlax döşənmiş və rahat olaraq iki maşın saxlamaq olur. İstilik sistemi kombidir. (əlavə olaraq ariston və tutumu 2ton olan su çəni var). Işıq, qaz və su daimidir. Evin bütün sənədləri (kupça) var. Yaxınlığda uşaq bağçası, məktəb və poliklinika var. Yola yaxındır.
Ünvan: Novxanı kəndində Novxanı kəndi Y. Məmmədəliyev küçəsi (yola yaxın Sahil marketin yaxınlığında)
Oxşar elanlar
Mərtəbə: 1
Sənədin tipi: Çıxarış (Kupça)
KUPÇA VAR-İPOTEKAYA YARARLI
SURAXANI RAYONU ZIĞ QƏSƏBƏSİ
Şəxsi üçün tikilən 7 daş kürsülü ve qoşa daşla tikilən çox gozel 4 otağlı sahəsi 130 kv olan 1 mərtəbəli həyət evi satılr
Evin altında padvalı mövcuddur
Mərkəz...
Sarayda polis bolmesinnnen icerde ana yola yaxin ev satilir wexsi ozume ayiddi. Masazira yaxin duz golune yaxin yeni yola yaxin yerlewir. 2.5sotun icinde kupcali ipatekaya yararlidi. Butun ev isdi poldu beton kermaqranit...
Xəzər rayonu Şüvəlan qəsəbəsi Azal stadionuna yaxin 3sot torpaq sahəsində insa edilmis 1 mertebeli bag evi satilir. Umumi sahəsi 140 kvm olan bu bag evin 4 otagi var.holl, 1 qonaq otağı, 3 yataq otağı, 2 sanitar qovşağı ...
Xəzər rayonu Şüvəlan qəsəbəsi Baglar massivinde 3.10 sot torpaq sahəsində insa edilmis 1 mertebeli bag evi satilir. Umumi sahəsi 150 kvm olan bu bag evin 4 otagi var.holl, 1 qonaq otağı, 3 yataq otağı, 2 sanitar qovşağı ...
TƏCİLİ SATILIR.
MAKLER EVİ DEYİL.
SƏNƏD - (KUPÇA. ÇİXARİŞ)
Masazir qəsəbəsi. Zeynəb ticarət mərkəzindən 1000 metr içəri. Evin düz yanindan 569 nöm avtobus kecir: Avtovağzala gedir.
2 sot torpaq sahəsində, 2 mərtəbəli...
Kohne Gunesli 2,5sot, her seraiti var, Tel WiFi konalizasiya sistemi, heyetde sanuzelde var, 2 masln yerleshir heyete, ucuzluq inivermaglnln arxa terefli, mekteb, baxcs magazalal yaxln ana yola 150 m.
322 saylı Məktəbin Yaxınlığında
5 sot torpaqda yerləşən 7 daş kürsülü təmirli həyət evini sizə təqdim edirəm
Torpağın da və evin də kupçası var
1ci mərtəbədə zal, mətbəx və sanuzel
2ci mərtəbədə 3 yataq otağı...
TƏCİLİ KUPÇALI HƏYƏT EVİ SATILIR!!!
Suraxanı rayonu.Qaraçuxur qəsəbəsində Yanardağ restarana yaxın 1 sot torpaq sahəsində 2 mərtəbəli 4 otaqlı təmirli həyət evi satılır.Evdə qaz,su,işıq,internet,istilik vardır.Ev qoş...
Telefon nömrənizi daxil etməklə Sizi maraqlandıran yeni elanlardan dərhal xəbərdar olun
Xəritədə ünvanı
Dostuna göndər
Elanın premium edilməsi
Bu funksiyadan istifadə edərək elanınızı əsas səhifədə "Premium elanlar" bölməsində yerləşdirə bilərsiniz.
Premium etdiyiniz zaman elanınızın "Elanın tarixi" premium etdiyiniz dəqiqəyə yenilənir və yenidən 1 ay ərzində saytda aktiv qalır.
Bir elan premium olduğu halda yenidən premium edib ödəniş etdiyiniz zaman əvvəlki premium olunmuş vaxtdan qalan zaman indiki ödədiyiniz vaxt ilə toplanır.
Kredit kart
Portmanat
tabs 2
Elanın irəli çəkilməsi
Bu funksiyadan istifadə edərək siz elanınızı saytda irəli çəkə bilərsiniz.
Ödəniş həyata keçdikdən sonra elanınızın "Elanın tarixi" müddəti indiki zamana dəyişir və saytda yenidən 1 ay ərzində aktiv qalır.
Bundan əlavə elanınız əsas səhifədə və axtarışın parametrlərində 12 saat müddətinə irəlidə qalır və başqa elanlar əlavə edilməsinə baxmayaraq arxaya keçmir.
Profildən daxil olduğunuz zaman "Elanı irəli çək" funksiyasını paket şəklində əldə edə bilərsiniz və sonradan hansı elanınıza istəsəniz tətbiq edə bilərsiniz.
Kredit kart
Paket
Portmanat
portmanat
Elanı axtarışda seçilən et
Bu funksiyadan istifadə edərək sizin elanınızın parametrləri üzrə axtarışın nəticələrində üst hissədə öz elanınızı yerləşdirə bilərsiniz.
Xidmət haqqının ödənilməsindən sonra elanınız rənglənəcək və hətta sonradan yeni elanlar əlavə olunarsa belə, 10 gün ərzində elanınızın parametri üzrə axtarış nəticələrində üst hissədə göstəriləcək.
Kredit kart
Paket
Portmanat
tabs 2
Elanı təcili et
Bu funksiyadan istifadə edərək elanınızın üzərində "Təcili" sözünü yazdıra bilərsiniz. Elanınız aktiv qaldığı müddətcə bu söz onun üzərində qalacaq və diqqət çəkəcək.
Kredit kart
Portmanat
tabs 2
Əlaqə vasitəsini gör
Bu funksiyadan istifadə edərək, elanın sahibinin nömrəsini görüntülü edə bilərsiniz.
Kredit kart
Portmanat
tabs 2
Elanı facebook və instagramda paylaş
Bu funksiyadan istifadə etdikdə, sizin elan 80 000-lik facebook səhifəsində ve 80 000-lik instagram səhifəsində paylaşılacaq.
Kredit kart
Portmanat
tabs 2
Sosial video reklam
Bu xidmətdən istifadə edərək sizin əmlakın təqdimat videosu bizim sosial şəbəkə hesablarımızda paylaşılacaq və 1000-lərlə alıcının diqqətinə çatdırılacaqdır.
Qiymətə tərəfimizdən profesional izahlı video çəkiliş, montaj, səsləndirmə, foto çəkiliş, əmlak haqqında mətnin yazılması, elanın sayta yerləşdirilməsi-də daxildir.