İş saatları: 1-5- ci günlər. 9:00-19:00, 6 ci gun 9:00 - 14:00
Elanlara SMS abunə Daxil ol Qeydiyyat Elan ver

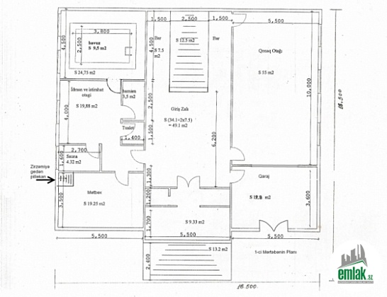
Satılır 10 otaqlı 450 m2 bağ evi Bilgəh

Elanın kodu: 581702

175 000 $ 102 941.00
Baxış sayı: 631 Elanın tarixi: 09.03.2020

Əsas məlumatlar

Təcili Bilgəhdə Bağ Satılır!
Qayanın üstündə yerləşir.
Dəniz səviyyəsindən çox hündürdədir, və dənizə çox gözəl mənzərə var.
Şamaxıdan 100 Kamaz - qara torpaq tökülüb.
Dənizqırağı yoldan təxmini 900m aralıdı
Torpaq sahəsi – 16 sot
Evin sahəsi – təxmini 450 m2
2 mərtəbəsi var, beton zirzəmi və çardaq var.
Təmir - Pod mayak
Ev çox fundamental tikilib.
Divarlar qalın və tavan hündürdü
Torpağın Cıxarışı var !

Əmlakın növüBağ evi
Sahə450 m2
Otaqların sayı10
Mərtəbə sayı2
TəmiriTəmirsiz
Sənədin tipiÇıxarış (Kupça)
Bu elanın vaxtı bitib
 

Ünvan: Bilgəh, 16 dalan

Oxşar elanlar
Mərtəbə: 2   Sənədin tipi: Çıxarış (Kupça)

Siyəzən rayonu ZARAT kəndin deniz terəfində beşbarmaq dağın qarşısında 5 ədəd iki mərtəbəli kirayə evlər kompleksi satılır. Kirayə almaq məqsədiylə almaq istəyənlərə üçün ideal variantır. İlin dörd fəslini kirayə vermək ...

395 000 AZN

Mərtəbə: 3   Sənədin tipi: Çıxarış (Kupça)

Əşyalarla Möhtəşəm bağ evi!! Mərdəkan qəsəbəsinin mərkəzində, Makaron fabrikinin arxasında yola çox yaxın yerləşən 15 Sotda 3 mərtəbə 670 kv.m 10 otaqlı möhtəşəm Bağ evi Bütün əşya və avadanlıqlarla birlikdə satılır. 5 y...

900 000 AZN

Mərtəbə: 1   Sənədin tipi: Çıxarış (Kupça)

Noxanı bağlarında, dənizə çox yaxın ərazidə bağ evi satılır. Ev Gəmi Qaya Restoranı ilə üzbəüz yerləşir. Torpaq sahəsi 12 sotdur. Ev 10 otaqlıdır və orta təmirlidir. Qaz, su və işıq daimidir. Həyətyanı sahə çox geniş ...

250 000 AZN