İş saatları: 1-5- ci günlər. 9:00-19:00, 6 ci gun 9:00 - 14:00
Elanlara SMS abunə Daxil ol Qeydiyyat Elan ver

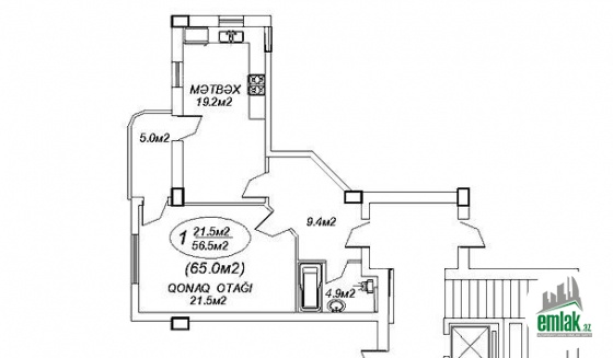
Satılır 1 otaqlı 65 m2 yeni tikili 8 km

Elanın kodu: 622081

72 000 $ 42 352.00
Baxış sayı: 494 Elanın tarixi: 17.08.2020

Əsas məlumatlar

Neftçilər-Xalglar metrosunun yaxınlığında, Nizami rayonun 8 bazarın arxasında, 251 məktəbin üzbəyüz Naxcivanski küc, 18 mərtəbəli yenitikili daş binanın 2-ci mərtəbəsində sahəsi 65 kv.m olan və 2-otağa rahat düzəldilə bilən təmirsiz mənzil satilir .Bina fasiləsiz qaz,su, və işıqla təmin edilir.
24 saat mühafizə olunan binanın yaxınlığında
uşaq baxçası,məktəblər,ticarət obyektləri və başqa iaşə obyektləri vardırlar.
Mənzilin sənədi CIXARIS ( kupca ).
Qiymət sondur və sənədləşmə qiymətə daxildir.

Əmlakın növüYeni tikili
Sahə65 m2
Otaqların sayı1
Yerləşdiyi mərtəbə2
Mərtəbə sayı18
TəmiriTəmirsiz
Sənədin tipiÇıxarış (Kupça)
Bu elanın vaxtı bitib
 

Ünvan: Naxcivanski66A

Oxşar elanlar
Mərtəbə: 8/12   Sənədin tipi: Müqavilə

Şəhərin səs-küyündən uzaq, Xəzərin sahilində dənizlə iç-içə yaşam vəd edən Bulvar Park Yaşayış Kompleksinə xoş gəldiniz. Uşaqlar üçün oyun parkları, Yerüstü və yeraltı parking, Əlavə olaraq kompleksdə məktəb və bağça bi...

103 870 AZN

Mərtəbə: 9/12   Sənədin tipi: Müqavilə

Şəhərin səs-küyündən uzaq, Xəzərin sahilində dənizlə iç-içə yaşam vəd edən Bulvar Park Yaşayış Kompleksinə xoş gəldiniz. Uşaqlar üçün oyun parkları, Yerüstü və yeraltı parking, Əlavə olaraq kompleksdə məktəb və bağça bi...

126 360 AZN

Mərtəbə: 4/12   Sənədin tipi: Müqavilə

Şəhərin səs-küyündən uzaq, Xəzərin sahilində dənizlə iç-içə yaşam vəd edən Bulvar Park Yaşayış Kompleksinə xoş gəldiniz. Uşaqlar üçün oyun parkları, Yerüstü və yeraltı parking, Əlavə olaraq kompleksdə məktəb və bağça b...

97 440 AZN

Mərtəbə: 7/12   Sənədin tipi: Müqavilə

“City House” Masazır- 12 mərtəbəli 1;2;3 otaqlı mənzillərdən ibarət olan yaşayış kompleksdir. City House premium yaşayış məkanı konseptinə əsaslanan müasir bir layihədir. Biz tikintidə yalnız sertifikatlı materiallardan...

52 700 AZN

Mərtəbə: 4/12   Sənədin tipi: Müqavilə

“City House” Masazır- 12 mərtəbəli 1;2;3 otaqlı mənzillərdən ibarət olan yaşayış kompleksdir. City House premium yaşayış məkanı konseptinə əsaslanan müasir bir layihədir. Biz tikintidə yalnız sertifikatlı materiallardan...

62 900 AZN

Mərtəbə: 3/12   Sənədin tipi: Müqavilə

“City House” Masazır- 12 mərtəbəli 1;2;3 otaqlı mənzillərdən ibarət olan yaşayış kompleksdir. City House premium yaşayış məkanı konseptinə əsaslanan müasir bir layihədir. Biz tikintidə yalnız sertifikatlı materiallardan...

53 200 AZN

Mərtəbə: 2/14   Sənədin tipi: Müqavilə

Müasir memarlığı və ideal planlaşdırılması ilə seçilən Xocəsən Residence 14 mərtəbəli olmaqla 12 binadan ibarətdir. Xocəsən metrosuna cəmi 5 dəqiqəlik məsafədə yerləşən kompleksdən Bakı Dairəvi Yolu vasitəsilə şəhərin is...

96 679 AZN

Mərtəbə: 5/17   Sənədin tipi: Müqavilə

Grand Plaza premium yaşayış kompleksi Koroğlu və Zorge parkları ilə əhatə olunan yaşıllıq ərazidə yerləşir. Kompleks Dədə Qorqud parkı və ADA Universitetindən 3 dəqiqəlik, Nəsimi Rayon İcra Hakimiyyəti və Heydər Əliyev a...

150 450 AZN

Mərtəbə: 1/12   Sənədin tipi: Müqavilə

“City House” Masazır- 12 mərtəbəli 1;2;3 otaqlı mənzillərdən ibarət olan yaşayış kompleksdir. City House premium yaşayış məkanı konseptinə əsaslanan müasir bir layihədir. Biz tikintidə yalnız sertifikatlı materiallardan...

51 600 AZN

Mərtəbə: 4/9   Sənədin tipi: Müqavilə

Masazir qəsəbəsi əsas yolun üstünde 4 Qardaşlar yaşayış kompleksində ümumi sahəsi 50 kv m olan 1 otaqlı təmirsiz mənzil satılır Mənzil 9 mərtəbəli binanin 4 cü mərtəbəsində yerləsir. Yaxınlığında Məkteb baxca, futbol me...

55 000 AZN