Satılır 5 otaqlı 216.5 m2 həyət evi Lənkəran
Elanın kodu: 747013
49 494
$ 29 114.00
Baxış sayı: 581
Elanın tarixi: 07.09.2021
Əsas məlumatlar
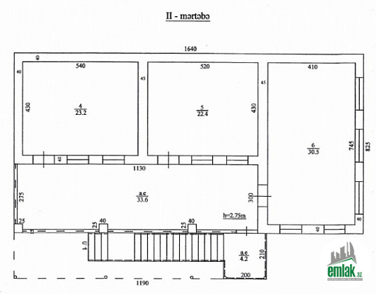
Lənkəran şəhəri, Səttarxan küşəsində, Bakı-Astara şossesindən 5 km (7 dəqiqə) məsafədə, torpaq sahəsi 9 sot olan 2 mərtəbəli, 5 otaq və qarajdan ibarət zəif təmirli ev satılır. Su və elektrik təchizatı smart sayğacla, qaz təminatı sayğacladır. Telefon xətti var. Həyətdə su quyusu və su çəni də var. Həyətdə müxtəlif meyvə ağacları var. Ev dənizdən 1 km, dəmir yol vağzalından 1,7 km, avtovağzaldan 2,5 km, bazardan 1,5 km məsafədə yerləşir.
- Əmlakın növüHəyət evi
- Sahə216.5 m2
- Otaqların sayı5
- Mərtəbə sayı2
- TəmiriZəif təmirli
- Sənədin tipiÇıxarış (Kupça)
Facebook və instagramda paylaş 30 azn
Oxşar elanlar
Mərtəbə: 1
Sənədin tipi: Digər sənəd
Ev özəl tikilib şəxsi evdir makler evi deyil bütün materialları keyfiyyətlidir Samux rayonunun Qarayeri Qesebesinin girişində Klass kafenin arxasında yerləşir torpağın sənədi çıxarisdir evin sənədini çıxartmaq asandır 7 ...
63 000 AZN
Təcili
Mərtəbə: 2
Sənədin tipi: Çıxarış (Kupça)
TƏCİLİ ŞƏXSİ HƏYƏT EVİMİ SATIRAM !!!
Qaradağ rayonu, Lökbatan qəsəbəsi, 6-cı Massivdə yerləşir.
1.5 sotda tikili sahəsi 150 kv.m olan 2 mərtəbəli 5 otaqlı və yerdən kürsülü Dəniz mənzərəli həyət evidir. Ev cüt daşl...
155 000 AZN
Mərtəbə: 2
Sənədin tipi: Çıxarış (Kupça)
Xezer rayonu Merdekan qesebesi villalar olan mehellede Xalca restoranina yaxin 7 sot torpaq sahesinde insa edilmis 2 mertebeli bag evi satilir.Umumi sahesi 290 kvm olan bu bag evin 5 otagi var.holl ,1 zal,metbext , 4 yat...
750 000 AZN
Mərtəbə: 2
Sənədin tipi: Çıxarış (Kupça)
Tam kupçalı(evin ayrı torpağın ayrı sənədi var) elektron darvaza. Kombi kuxna mebeli və 2 ədəd kondisioner qalacaq. 5 otağdır. Aşağı və yuxarı mərtəbələrdə tualet var. Aşağıda padvalıda var və üsd krişa isdifadə üçün yar...
115 000 AZN
Mərtəbə: 2
Sənədin tipi: Çıxarış (Kupça)
TƏCİLİ SATILIR!!
Bakı şəhəri, Suraxanı rayon, Əmircan qəsəbəsində 1 sotda 100 kv olan kürsülü qoşa daşla tikilmiş 2 mərtəbəli 5 otaqdan ibarət həyət evi satılır.İstilik sistemi-kombidir. Su, işıq, qaz daimidir.Mərkəzi ...
125 000 AZN
Mərtəbə: 1
Sənədin tipi: Sərəncam
Şəxsi evimdir. Marşurut xəttlərinə və 182,179 saylı məktəblərə yaxındır. Yaxınlığında iaşə obyektləri mövcuddur. Qapıya qədər asfalt yoldur. Məhlənin dövlət təhlükəsizlik kamerası var. Qaz, Su, Işıq daimidir kanalizasiya...
125 000 AZN
Mərtəbə: 1
Sənədin tipi: Sərəncam
Satılır — Həyət evi | Binə qəsəbəsi, Atçılıq tərəf
Aeroport yolundan 70 metr içəridə yerləşir
Torpaq sahəsi: 3 sot
Ev: 150 m², 5 otaq
Sənəd: Sərəncam
Qiymət: 135,000 AZN
Ofis xidmət haqqı: 1%
...
135 000 AZN
Mərtəbə: 2
Sənədin tipi: Çıxarış (Kupça)
İPATEKAYA YARARLİ.Xezer rayonu bine qesebesinin girişində 88 sayli məktəbə yaxin mesafede 2.5 sotun icinde 2 Mərtəbəli MƏRTƏBƏ ARASİ MANALİT BETON 1ci mərtəbədə zal+mədbəxt +s/q +yatax 2 ci mərtəbədə 3 yatax otaqi +s/q ...
170 000 AZN
Mərtəbə: 2
Sənədin tipi: Çıxarış (Kupça)
sabuncu rayonu
zabrat mastaga yolunda
merkezi yola yaxin mesafede,
3 sotda 2 mertebe 5 otaq heyet evi satilir
mertebe arasi monolit betondur
sened kupcadi evin ve torpagin
kanalizasiyya sistemi merkezi...
219 000 AZN
Mərtəbə: 2
Sənədin tipi: Çıxarış (Kupça)
sabuncu rayonu
zabrat 1 qesebesinde
4 sot torpaq sahesinde
2 mertebe 5 otaq heyet evi satilir
mertebe arasi monolit betondur
sened kupcadi
endirim mumkundur
210 000 AZN