İş saatları: 1-5- ci günlər. 9:00-19:00, 6 ci gun 9:00 - 14:00
Elanlara SMS abunə Daxil ol Qeydiyyat Elan ver

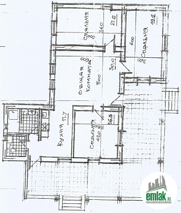
Satılır 4 otaqlı 120 m2 bağ evi Fatmayı

Elanın kodu: 839391

95 000 $ 55 882.00
Baxış sayı: 664 Elanın tarixi: 25.05.2022

Əsas məlumatlar

Fatmayı bağları ərazisində, yeni açılan böyük Araz supermarketə yaxın 12 sot torpaqda 75% hazır olan modern stilində layihələndirilmiş, rahat mətbəxli, iri pencərələrli, 4 otaqlı (2-nin fundamenti qoyulub qaldırılmayıb) ev ilə bağ sahəsi satılır. Bağ kupçası ilə satılr. Sənədlər hazır olma mərhələsindədir. Bağ bir başa sahibkar tərəfindən satılır.

Əmlakın növüBağ evi
Sahə120 m2
Otaqların sayı4
Mərtəbə sayı1
TəmiriNatamam təmirli
Sənədin tipiÇıxarış (Kupça)
Bu elanın vaxtı bitib
 

Ünvan: Fatmayı bağları

Oxşar elanlar
Mərtəbə: 1   Sənədin tipi: Çıxarış (Kupça)

Mərdəkanda 4 sot torpaqın içində yeni inşa edilmiş. Ümumi sahəsi 140 kv, 4otaqdan ibarət,1-zalı 3yataq otağı1 - mətbəxt ,hündür tavanlı, zövgle təmir edilib, istilik kombi sistemidir. İsti döşəmə Keyfiyyətli tikinti mate...

225 000 AZN

Mərtəbə: 1   Sənədin tipi: Çıxarış (Kupça)

Torpaq hündür ərazidə yerləşir, müxtəlif istiqamətlərdən yolu var. Aparat bağlarından, duz gölündən, saray körpüsündən yolu var. ətrafda yaşayış mövcuddur, havası çox gözəldir.Torpağın ölçüsü 16.5 sot, 12 sotun kupçası v...

125 000 AZN

Mərtəbə: 1   Sənədin tipi: Çıxarış (Kupça)

Özümə məxsus Mərdəkanda 3 sot torpaqın içində TAM ƏŞYALI , yeni inşa edilmiş. Ümumi sahəsi 140 kv, 4otaqdan ibarət,1-zalı 3yataq otağı1 - mətbəxt ,hündür tavanlı, zövgle təmir edilib, istilik kombi sistemidir. İsti döşəm...

180 000 AZN

Mərtəbə: 1   Sənədin tipi: Çıxarış (Kupça)

Tam Əşyalı!! Bakı Bağları şirkəti sizə ekoloji təmiz Mərdəkan qəsəbəsində 4 Sotda 1 mərtəbə 160 kv.m 4 otaqlı super bağ evini təklif edir. Bağ evi zal, mətbəx, 3 yataq otağı, holl və 3 sanuzeldən ibarətdir. Otaqlarda ası...

385 000 AZN

Mərtəbə: 1   Sənədin tipi: Çıxarış (Kupça)

Bakı Bağları şirkəti sizə ekoloji təmiz Mərdəkan qəsəbəsində 4.5 Sotda 1 mərtəbə 180 kv.m 4 otaqlı super bağ evini təklif edir. Bağ evi zal, mətbəx, 3 yataq otağı, holl və 2 sanuzeldən ibarətdir. Otaqlarda asılmış pərdə ...

300 000 AZN

Mərtəbə: 1   Sənədin tipi: Çıxarış (Kupça)

Bakı Bağları şirkəti sizə ekoloji təmiz Şüvəlan qəsəbəsində 3 Sotda 1 mərtəbə 170 kv.m 4 otaqlı super bağ evini təklif edir. Bağ evi zal, mətbəx, 3 yataq otağı, holl və 2 sanuzeldən ibarətdir. Otaqlarda asılmış pərdə və ...

230 000 AZN

Mərtəbə: 1   Sənədin tipi: Çıxarış (Kupça)

Bakı Bağları şirkəti sizə ekoloji təmiz Şüvəlan qəsəbəsində Halva restoranı yanında 4 Sotda 1 mərtəbə 160 kv.m 4 otaqlı super bağ evini təklif edir. Bağ evi zal, mətbəx, 3 yataq otağı, holl və 2 sanuzeldən ibarətdir. Ota...

390 000 AZN

Mərtəbə: 1   Sənədin tipi: Çıxarış (Kupça)

Bakı Bağları şirkəti sizə ekoloji təmiz Mərdəkan qəsəbəsində Ağ evdən içəridə 5 Sotda 1 mərtəbə 170 kv.m 4 otaqlı super bağ evini təklif edir. Bağ evi zal, mətbəx, 3 yataq otağı, holl və 2 sanuzeldən ibarətdir. Otaqlarda...

285 000 AZN

Mərtəbə: 1   Sənədin tipi: Çıxarış (Kupça)

Bakı Bağları şirkəti sizə ekoloji təmiz Mərdəkan qəsəbəsində 4.2 Sotda 1 mərtəbə 180 kv.m 4 otaqlı super bağ evini təklif edir. Bağ evi zal, mətbəx, 3 yataq otağı, holl və 2 sanuzeldən ibarətdir. Otaqlarda asılmış pərdə ...

375 000 AZN

Mərtəbə: 1   Sənədin tipi: Çıxarış (Kupça)

Bakı Bağları şirkəti sizə ekoloji təmiz Şüvəlan qəsəbəsində 3 Sotda 1 mərtəbə 160 kv.m 4 otaqlı super bağ evini təklif edir. Bağ evi zal, mətbəx, 3 yataq otağı, holl və 2 sanuzeldən ibarətdir. Otaqlarda asılmış pərdə və ...

190 000 AZN