Əlaqə: +994 50 555 18 18

İş saatları: 1-5- ci günlər. 9:00-19:00, 6 ci gun 9:00 - 14:00
Elanlara SMS abunə Daxil ol Qeydiyyat Elan ver

Qubada 1 otaqlı təmirli kupçalı evlərin satışı, satılan evlər - Emlak.az / 1214 elan tapıldı

Düzülüş:  Xəritədə göstər
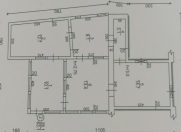
Satılır 2 otaqlı 70 m2 həyət evi Quba
Satılır 2 otaqlı 70 m2 həyət evi Quba
Mərtəbə: 1   Sənədin tipi: Çıxarış (Kupça)

Quba rayonu Alekseyvka qəsəbəsi , zizik yolunda dönəndə 5 ci qapı, magistral yola yaxın, ətrafında şadlıq evi, məktəb, iri marketlər və butun kommunikasiya xidmətli mövcuddur, Quba Asan Xidmətlə ara məsafəsi 2 km. Yasay...

62 000 AZN

Satılır 3 otaqlı 200 m2 yeni tikili Quba
Satılır 3 otaqlı 200 m2 yeni tikili Quba
Mərtəbə: 1/1   Sənədin tipi: Yoxdur

Ev Quba Xınalıq yolunun solunda yerləşən Əlik kəndində yerləşir. Dağlıq ərazidə yerləşən ev həmdə Qudyal çayın sahilindədir. Yay istirahət evi kimi də turistlərə kirayə verilə bilər. Yeni tikilib və təmirlidir. Kənd əraz...

11 500 AZN

Satılır 5 otaqlı 195 m2 yeni tikili Quba
Satılır 5 otaqlı 195 m2 yeni tikili Quba
Mərtəbə: 2/2   Sənədin tipi: Çıxarış (Kupça)

12 sot torpaqdır zabirdu her terfden .qaz su işiq kanalzasya var .fikri cidi olan zeng etsin sotu 4 mindir

4 000 AZN

Satılır 3 otaqlı 72 m2 bağ evi Quba
Satılır 3 otaqlı 72 m2 bağ evi Quba
Mərtəbə: 2   Sənədin tipi: Çıxarış (Kupça)

Quba Şəhər Zizik Kendi Erazisinde 3 Otaq 2 mertebe Evdir alt otaglar hal hazirda padval ( anbar ) kimi istifade olunur Bagi var 16 sot Gilas bagidir Yeni Fakt olaraq Gelir gelir 2000-2500 baxilsa elave Geliri artirmaq ...

37 000 AZN

Satılır 6 otaqlı 280 m2 bağ evi Quba
Satılır 6 otaqlı 280 m2 bağ evi Quba
Mərtəbə: 2   Sənədin tipi: Çıxarış (Kupça)

Quba -Qusar yolunun üstündə Diqah kendi ərazisində 18 sot torpaq sahəsində yerləşən kürsülü 2 mərtəbəli ev monolit tikilişi ile ideal layhə,tam təmirli ,yay və qış mövsümündə yaşayışə uyqun, tam mebelləri ilə təchiz olun...

255 000 AZN

Satılır 6 otaqlı 55555600000 m2 həyət evi Quba
Satılır 6 otaqlı 55555600000 m2 həyət evi Quba
Mərtəbə: 2   Sənədin tipi: Çıxarış (Kupça)

Heyet evi qaz su isig var,Quba rayon Ermeki kendi

57 000 AZN

Satılır 2 otaqlı 62 m2 həyət evi Quba
Satılır 2 otaqlı 62 m2 həyət evi Quba
Mərtəbə: 1   Sənədin tipi: Bələdiyyə sənədi

salam 62 sot torpaq 2otaqli ev 93metr artizan daimi su emlak payi senetli kende qaz cekilmiyib

30 000 AZN

Satılır 4 otaqlı 200 m2 həyət evi Quba
Satılır 4 otaqlı 200 m2 həyət evi Quba
Mərtəbə: 1   Sənədin tipi: Şəhadətnamə

Qəçreşə 15dəqiqə məsafə Qaz su işıq daimidir Kosmetik isleri qalıb Əsas yola yaxındır Torpaq 6sot Ev 200kvadrat Real alıcıya ENDIRIM ede bilerik 2-3defeye de odeme ede biler

35 000 AZN

Satılır 2 otaqlı 63.1 m2 köhnə tikili Quba
Satılır 2 otaqlı 63.1 m2 köhnə tikili Quba
Mərtəbə: 1/2   Sənədin tipi: Çıxarış (Kupça)

Qubada şəhərin mərkəzində,Nizami parkına yaxın ərazidə 2 otaqdan ibarət təmirsiz mənzil satılır.Uzun illərdir mənzildə yaşayış olmadığından evin əsaslı təmirə ehtiyyacı var.Bir otaq bina daxilində,qalan otaqlar əlavə tik...

30 000 AZN

Satılır 5 otaqlı 300 m2 həyət evi Quba
Satılır 5 otaqlı 300 m2 həyət evi Quba
Mərtəbə: 2   Sənədin tipi: Çıxarış (Kupça)

Təcili Satılır! Quba rayonu, Bağbanlı kəndində, 12 sotun içində 2 mərtəbəli, mansarlı həyət evi satılır. Ev yaxşı təmirlidir. Evin sənədi var, kupçadır. Qazı, işığı, suyu daimidir. Yaşayış üçün yararlıdır. Qiyməti ...

60 000 AZN